Casa di corte in vendita

Capua, Via Tavernola - Sant'Angelo In Formis
€ 100.000
3 locali 3 locali
100 Mq 100 Mq
1 bagno 1 bagno

Casa di corte in vendita

Capua, Via Tavernola - Sant'Angelo In Formis

Descrizione annuncio

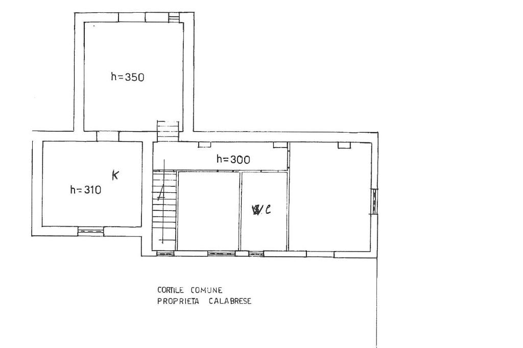
In Sant'Angelo in Formis, nel comune di Capua, è disponibile per la vendita una casa semindipendente con ampio cortile in comune con l'uso di un forno. L'immobile al piano rialzato si estende su una superficie di 100 mq. L'ingresso principale è dal soggiorno con camino, dal soggiorno si accede alla cucina abitabile e tramite una piccola rampa di scale si accede alla zona notte dove ben disimpegnate ci sono due camere da letto e il bagno. Dalla cucina si accede ad un ampio spazio esterno condiviso solo con un'altra proprieta, quindi 1/2. Dal corridoio in casa si accede con vano scala rifinito in cotto ad un vano seminterrato di 60 mq. Costruita nel 1955 e ristrutturata nel 2000, la casa è dotata di aria condizionata in cucina e nelle camere da letto. Nel cortile principale si può parcheggiare una o due macchine davanti alla propria proprietà. Dalla strada si gode di un ulteriore accesso pedonale che serve il cortile posteriore che da sulla cucina, dove esiste un secondo accesso all'immobile. A copertura della casa c'è un terrazzo di copertura appena rifatto. Volendolo abitare da subito l'immobile necessita di una tinteggiata e poche altre cose. Vicinanza alla scuola e negozzi di vario genere.

Abbiamo creato un nostro profilo Instagram @agenzia_tecnocasasmcvnord!!

Seguici per restare sempre un passo avanti! Qui trovi le migliori soluzioni immobiliari in anteprima e, seguendoci, avrai la possibilità di fissare per primo la tua visita. La tua prossima casa potrebbe essere già qui!

Mostra tutto

Nelle vicinanze

Trasporto pubblico Trasporto pubblico
Sant'Angelo in Formis
Sant'Angelo in Formis
530 m
Stazione di Triflisco
Stazione di Triflisco
1,8 Km
Farmacia Farmacia
Farmacia Comunale
1,6 Km
Supermercati Supermercati
EuroSpin
2,6 Km
Decò
3,0 Km
Bar Bar
Bar
540 m
Ristoranti Ristoranti
Ristoranti
1,5 Km
Pizzeria
1,7 Km
Oasi Park
2,3 Km
Gli onorevoli
2,5 Km
Il cacciatore
2,6 Km
Mostra tutto

Caratteristiche

Rif.:
61173591
Piano:
Basso di 1
Totale piani:
1
Posti auto:
1
Terrazzi:
1
Camere da letto:
2
Mostra tutto
Prezzo Prezzo
€ 100.000
Rata mutuo Rata mutuo
€ 467 / mese
Spese annue Spese annue
€ 0
Proponi il tuo prezzoProponi il tuo prezzo
Immobile valutato con T·Valuta

Classe Energetica

G
G
G
G
G
G
G
G
G
EP globale non rinnovabile:
178.50 kW h/m² anno
EP globale rinnovabile:
0.00 kW h/m² anno
EP invernale del fabbricato:
EP estiva del fabbricato:
Anno di costruzione:
1955
Riscaldamento:
Autonomo
Tipo impianto:
A radiatori
Tipo alimentazione:
Metano

Ti interessa visionare l'immobile?

Fissa un appuntamento  Fissa un appuntamento

Richiedi informazioni

Clicca su Leggi per aprire l'informativa
* Questi campi sono obbligatori

Calcola il tuo mutuo

Semplice e senza impegno
Anticipo

( % )
Mutuo

( % )

pochi semplici passi

inserisci i tuoi dati
Questionario completato
Grazie per aver richiesto un appuntamento senza impegno con un nostro Consulente del Credito e Assicurativo.

Hai inserito correttamente tutti i dati necessari e a breve riceverai una e-mail con un link da convalidare per inviare i tuoi dati.
Affiliato
Immobiliare Santa Maria C.V. Srl
Via De Gasperi, 104 81055 Santa Maria Capua Vetere (CE)

Il nostro staff


  • Nicoletta Giovanna Sabbato
    Affiliata

  • Domenico Rossetti
    Affiliato
Via De Gasperi, 104 81055 Santa Maria Capua Vetere (CE)
Zona: Santa Maria Capua Vetere Nord
Mostra su mappa
Orari: Dal lunedì al venerdì: 08.30/13.00 - 15.30/20.00. Il sabato: 08.30/13.00 - 15.30.
Affiliato
Immobiliare Santa Maria C.V. Srl
Via De Gasperi, 104 81055 Santa Maria Capua Vetere (CE)

2026 Tecnocasa Franchising S.p.A. - P. IVA 08365160152 - Via Monte Bianco 60/A 20089 Rozzano (MI). Ogni agenzia ha un proprio titolare ed è autonoma. Privacy policy | Policy utilizzo | Cookie policy